2021-02-03 09:56:48 sunmedia 3248
闻“污”色变,污水处理厂这个曾是“脏乱臭”代名词的时代即将过去,不久的将来,一座披着“隐形衣”的地埋式高颜值污水厂——金马污水处理厂将落地成都市温江区金马街道。

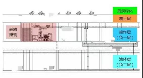
(地下式污水处理厂效果示意图)
金马污水处理厂(地下式)一期处理规模6万m3/日,项目远期总规模14.0万m3/日。计划于2021年上半年开工建设。
传统地上式污水处理厂在臭气、噪音、景观等方面对周边环境影响较大,与温江区整体环境发展目标不一致。
地下式污水处理厂具有高土地利用率、高周边环境效益和社会效益等优势,更契合温江区的优美环境和“宜业宜居宜游”的发展规划。有利于厂址北侧地块开发利用,有利于与金马国际马术公园环境协调,有利于改善厂址南侧双流居民区周边环境,有利于提升温江整体环境形象。


据悉,温江区金马污水处理厂即将于今年上半年开工建设。随着该项目的推进,将不断完善城市污水处理系统,解决日益增长的污水量处理需要,避免污水长距离输送。项目完工后可进一步改善生态环境,提升温江区“南大门”形象,进一步释放生态红利、环境红利、发展红利,促进经济可持续发展,同时极大完善我区排水基础设施建设,为亲水之城建设注入了绿色发展的新活力。
来源:水韵温江? 作者:李强
本文转载于网络,目的在于传递更多的信息,如涉及版权问题请及时联系,我们定会配合删除;我公司专业生产一体化预制泵站,磁力泵,塑料泵,离心泵,排污泵,潜水泵,化工泵,油泵,隔膜泵等。