2020-06-19 23:01:57  sunmedia  496
轨道交通特别是地铁在现代化建设中举足轻重,乘客舒适的出行是地铁建设必须考虑的问题,本文针对传统地铁站卫生间存在的不足,介绍污水提升器在地铁中的应用,以达到节省土建成本,减少维护成本,提高卫生标准以达到让乘客舒适,安全出行的目的。
目前,地铁已成为一座城市经济实力、人们生活水平及现代化的重要标志。随着我国改革开放的持续进行,经济的飞速发展,人们对现有交通的期望和要求也越来越高;再加上城市人口增加,路面交通状况的恶化,地铁正成为人们心目中最理想的交通解决方案,各大城市对地铁的需求也越来越迫切。
由于轨道交通快速、准时、安全、高效等特点,城市轨道交通,特别是地铁的蓬勃发展给城市居民的出行带来便利,使其越来越多地成为广大市民出行的第一选择。但如何做好服务和管理,让乘客舒适、愉快、满意地乘坐地铁,而由于处于地下站内卫生间污水排放所造成的异味外溢、蚊蝇细菌滋生、清理困能等问题又是这一课题中的一个难题。
国内地铁车站传统的污水提升系统一般由排水管道、污水池及污水泵组成,该系统有技术成熟、运营管理经验丰富、设备初期投资较小等方面的优点,但是随着人们对乘车环境要求的提高和轨道交通工程建设的快速发展,传统污水提升方式暴露了出了一些问题:
(1)污水池和污水泵房占地面积较大,同时结合站台板下空间设置,占用过多板下空间,影响板下电缆、水管的敷设; 污水池检修口容易散发臭味;
(2)由于受到污水泵启动次数等的限制,污水池有效容积较大,污水在池内停留时间长,土建污水池盖板密封性差,容易滋生蚊蝇、臭气,从而影响车站的卫生条件及舒适度;
(3)由于污水中的杂物容易造成堵塞,同时污水池中存有一部分受水泵吸水要求影响而无法排出的污水,所以污水池必须定期进行清掏,污水池清掏时需要人工进入水池,污水散发的臭味污染周围环境令人较难接受;
(4)污水池土建施工量大,要求高,比如需要考虑穿墙柔性管路,容易出现泄漏,由于环境恶劣,检修工作条件差,难度大。

图1 传统地铁站污水提升布置图
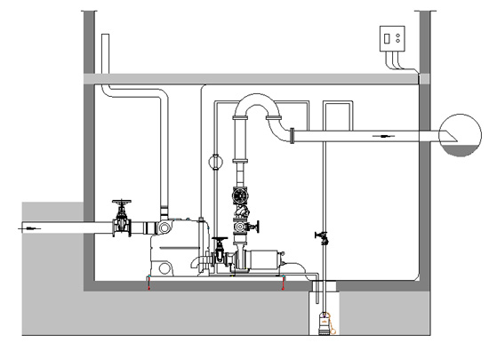
鉴于上述传统方式的缺点,集成化的污水提升器很好地解决了上述问题。该装置一般设置两台污水提升泵,一用一备,同时水箱中设置压力液位传感器,以监测水箱水位。生活污水经排水管进入密闭污水箱中,液位达到设定高度时由污水泵将污水排出车站,进入市政排污管道。
?? 污水提升器的优势在于设备性能稳定,易于维护;采用密闭式污水箱,卫生条件好,设备投资适中,而且大大减少土建成本。选择该系统应注意:水泵性能需可靠稳定,干式安装;污水箱容积应和水泵性能匹配,并考虑管道泄水要求,不宜过小。最好采用带切刀的污水泵,这样减少堵塞的概率,检修周期及使用寿命加长。典型的污水提升器系统布置见图2所示。

图2 典型的污水提升器系统布置图
该系统有如下特点:
(1)无需设置土建污水池,设备紧凑,占地小,节省土建投资;
(2)与其他专业接口少(土建无需设置水池,吸水坑,防水套管等,水泵及水位控制为配套设备),有利于保证施工质量,供货商提供全套设备,责任明确
(3)水泵可采用干式安装,便于维修;带切刀的水泵不易堵塞;
(4)采用密闭式污水箱,卫生间及泵房环境较好;
(5)采用适宜的水泵电机,水泵可连续启动次数的性能较传统的污水泵高,因而污水储水容积较传统形式小,并可根据用户需要进行调整,可保证水泵处于良好的工作状态,电机功率小,节约电能。
?污水提升器的集成设备示例,如图3所示,产品来自威乐。

图3 污水提升器集成设备示例(Wilo Drainlift)
(1)传统污水泵站暴露的问题较多,即使在原系统的基础上进行优化,仍不能有效地解决污水泵站乃至卫生间的卫生条件等问题,有必要升级原地铁污水提升系统。
(2) 密闭式污水提升系统在设备占地、节水、减少设计接口、降低施工难度、改善卫生条件等方面具有明显的优势, 可在地铁建设工程中推广使用。
(3) 密闭式污水提升系统适应性强、设备紧凑、稳定可靠,真空污水提升系统设备、管路布置灵活,除了适合在新线建设中使用,还适合地铁车站增设或改造卫生间的工程。