2020-06-19 23:01:57 sunmedia 3966
地铁已成为一座城市经济实力、人们生活水平及现代化的重要标志。随着我国改革开放的持续进行,经济的飞速发展,人们对现有交通的期望和要求也越来越高;再加上城市人口增加,路面交通状况的恶化,地铁正成为人们心目中最理想的交通解决方案,各大城市对地铁的需求也越来越迫切。
目前一些专家正在探讨我国地铁水处理情况的更多本源问题:由于轨道交通快速、准时、安全、高效等特点,城市轨道交通,特别是地铁的蓬勃发展给城市居民的出行带来便利,使其越来越多地成为广大市民出行的第一选择,但由于处于地下站内卫生间污水排放所引起的异味外溢、蚊蝇细菌滋生、清理困难等问题是这一课题衍生的一系列难题。
国内地铁车站传统的污水提升系统一般由排水管道、污水池及污水泵组成,该系统具有技术成熟、运营管理经验丰富、设备初期投资较小等方面的优点,但是随着人们对乘车环境要求的提高和轨道交通工程建设的快速发展,传统污水提升方式暴露了出了一些问题:
传统污水提升方式暴露的问题:
(1)污水池和污水泵房占地面积较大,同时结合站台板下空间设置,占用过多板下空间,影响板下电缆、水管的敷设;污水池检修口容易散发臭味;
(2)由于受到污水泵启动次数等的限制,污水池有效容积较大,污水在池内停留时间长,土建污水池盖板密封性差,容易滋生蚊蝇、臭气,从而影响车站的卫生条件及舒适度;
(3)由于污水中的杂物容易造成堵塞,同时污水池中存有一部分受水泵吸水要求影响而无法排出的污水,所以污水池必须定期进行清掏,污水池清掏时需要人工进入水池,污水散发的臭味污染周围环境,令人较难接受;(4)污水池土建施工量大,要求高,比如需要考虑穿墙柔性管路,容易出现泄漏,由于环境恶劣,检修工作条件差,难度大。

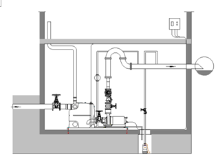
图1 传统地铁站污水提升布置图
集成化的污水提升器有效解决方案
鉴于上述传统方式的缺点,集成化的污水提升器特别是德国威乐WILO的污水提升器很好地解决了上述问题。该装置一般设置两台污水提升泵,一用一备,同时水箱中设置压力液位传感器,以监测水箱水位。生活污水经排水管进入密闭污水箱中,液位达到设定高度时由污水泵将污水排出车站,进入市政排污管道。

该系统有如下特点:
(1)无需设置土建污水池,设备紧凑,占地小,节省土建投资;
(2)与其他专业接口少(土建无需设置水池,吸水坑,防水套管等,水泵及水位控制为配套设备),有利于保证施工质量,供货商提供全套设备,责任明确;
(3)水泵可采用干式安装,便于维修;带切刀的水泵不易堵塞;
(4)采用密闭式污水箱,卫生间及泵房环境较好;
(5)采用适宜的水泵电机,水泵可连续启动次数的性能较传统的污水泵高,因而污水储水容积较传统形式小,并可根据用户需要进行调整,可保证水泵处于良好的工作状态,电机功率小,节约电能。
?
污水提升器的集成设备示例

图3 德国威乐WILOWilo污水提升器集成设备示例(Wilo Drainlift)
德国威乐WILO生产的污水提升器(Drainlift EX污水提升装置)有诸多显著优势:
利用输送介质,有效进行电机冷却,实现连续运行,电机运行温度40℃,电机寿命长;
叶轮口环处采用0.5mm密封间隙,有效阻止污物进入冷却夹套;
采用硬质合金切刀,有效切碎大颗粒物,防止出水管路堵塞;
采用双流道闭式叶轮,水泵效率达到51%,水泵效率高,节能效果好;
单台水泵正常启停次数可达30次/时,所需水箱数量少;
标准配置为单箱双泵,结构紧凑,节约安装空间;
德国进口PE水箱,最大有效容积达到305L,有效容积率达到76%,壁厚达到9mm 结实耐用;
机组使用预制底板,现场安装方便;
德国进口WIKA品牌静压液位计,精度高,可靠性好,坚固耐用;
水泵进口采用清淤设计,有效减少水箱内污物沉积无;
具有反冲洗结构,日常维护简单无;
结论
(1)传统污水泵站暴露的问题较多,即使在原系统的基础上进行优化,仍不能有效地解决污水泵站乃至卫生间的卫生条件等问题,有必要升级原地铁污水提升系统;
(2)密闭式污水提升系统在设备占地、节水、减少设计接口、降低施工难度、改善卫生条件等方面具有明显的优势,可在地铁建设工程中推广使用;
(3)密闭式污水提升系统适应性强、设备紧凑、稳定可靠,真空污水提升系统设备、管路布置灵活,除了适合在新线建设中使用,还适合地铁车站增设或改造卫生间的工程。
参考文献:
[1] GB501572003,地铁设计规范
[2] 陈耀宗,姜文源. 建筑给水排水设计手册[K].北京:中国建筑工业出版社, 2000